







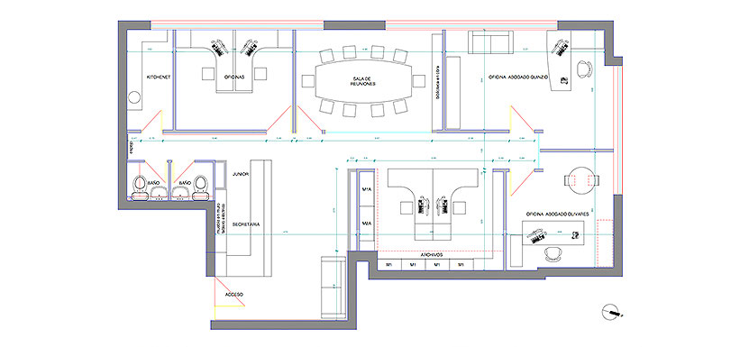
Proyecto: Oficinas Abogados Quinzio.
Cliente: Quinzio & Compañía Abogados Limitada.
Fecha: Jun. / 2010.
Ubicación: Av. Apoquindo Nº 4775, piso 10 Of.1001. Las Condes.
Superficie: 130 m2.
Materialidad: Tabiques en metalcon con volcanita, tabiques vidriados empavonados, cielo volcanita, iluminación tubos fluorescentes y focos directos, piso fotolaminado, mobiliario en obra con enchape melamina.
El encargo se genera a través del arriendo de las nuevas oficinas de abogados para renovar el recinto a los nuevos requerimientos funcionales y operativos de sus ocupantes. Para esto se desarrolló un trabajo de remodelación con un nuevo look de interiorismo moderno e iluminado a través de aberturas de tabiques, iluminación natural con tabiques vidriados y ciertos elementos decorativos muy simples que dan una nueva imagen a la empresa.
De los elementos existentes en el lugar, tratamos de reutilizar el nuevo montaje, acotando el presupuesto y generando mayor importancia a la espacialidad volumétrica de las nuevas oficinas.
Quinzio & Compañía es una de las oficinas de abogados más prestigiosas del país en el tema del derecho minero, encabezados por los abogados Cristián Quinzio y Marcelo Olivares