






Proyecto: EMPRESA IMDISEM.
Cliente: Empresa Imdisem. Distribuidores de insumos médicos y dentales.
Fecha: May/Sept - 2009.
Ubicación: Los Conquistadores Nº 2121, Providencia.
Superficie: 106,96 m2.
Materialidad: tabiques metalcon con volcanita, muros pintura, piso fotolaminado, tabiques retroiluminados con tubos fluorescentes, iluminación focos directos, mobiliario madera trupan enchape melamina blanca y madera, puerta corredera vidriada de madera enchape encina natural. Bodega muros hormigón celular, revestimientos y cubierta de placas Onduline Classic negro, estructura techumbre madera pino, piso radier, puerta metálica
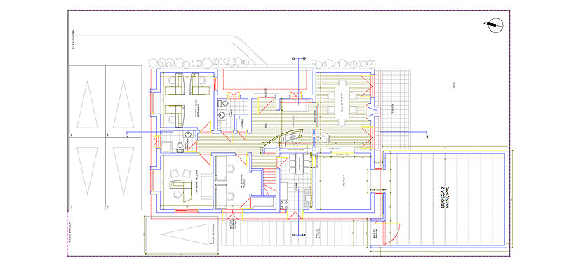
El proyecto se genera por el arriendo de una nueva propiedad del cliente ya que anteriormente se había diseñado las primeras dependencias de esta empresa que tienen su sucursal base en la ciudad de Viña del Mar.
La empresa estaba creciendo lo que permitió buscar una casa antigua en el sector del barrio Pedro de Valdivia Norte en la comuna de Providencia, la cual es remodelada en su interior y se generan nuevas ampliaciones para la zona de bodega y showroom de la empresa.
Las remodelaciones interiores se refieren al acondicionamiento de los espacios de oficinas, recepción, sala de reuniones, cocina y servicio técnico. En la zona del hall se desarrolla un nuevo espacio donde está la recepción, incorporando mobiliario diseñado previamente anterior y que fue acoplado al nuevo espacio. Se generan nuevos tabiques retroiluminados y cielo falso para contener un recibo más amable y contemporáneo.
En el patio se diseña la ampliación de una bodega de acopio para los insumos médicos y dentales que distribuye la empresa. Se trata de un volumen rectangular hermético generando una imagen unitaria a través de sus revestimientos.
El partido general de la propuesta obedece a la integración de los espacios comunes de las oficinas por medio del tratamiento del piso foto laminado, la iluminación y el mobiliario integrado, mientras que la bodega aparece como un complemento arquitectónico exterior a la propuesta